3 Hawthorn Place,Laharn,Killorglin,Co. Kerry

Killorglin, Co. Kerry

Quick Summary

Location
3 Hawthorn Place,Laharn,Killorglin,Co. Kerry
Price
€475,000
Property Type:
House
Status:
Sale
Area:
184 m2
Beds:
5
Baths:
3

Property Description

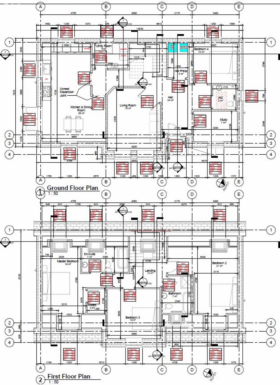
*****NEWLY BUILT HOME***** We are delighted to offer 9 Hawthorn Place to the market, which comprises of a newly built 5 bed spacious detached private residence. The accommodation therein comprises of: Ground floor: Sitting room 4.54m X 3.83m Kitchen/dining area 7.13m X 4.66m Utility 2.6m X 1.82m Hotpress 2.5m X 1.43m Bedroom One 3.5m X 2.9m WC 1.8m X 1.78m Bedroom Two/Study 3.2m X 2.24m First floor: Bedroom three 4.77m X 3.2m Ensuite 3.35m X 1.8m Walk in wardrobe 1.37m X 1.37m Bedroom four 5m X 4.77m Bedroom five 4.22m X 3.8m Bathroom 2.7m X 2.32m Main Features Include: A2 Energy rated with cavity block construction including pumped insulation Air to water heating system Triple glazed windows Brick feature footpaths Driveway finished and kerbed Good electrical specification including wiring for alarm and car charging point 10 Year HomeBond Guarantee External Features * High quality render finish with a unique stone faade to front elevation of homes. * 400mm blockwork cavity wall construction with 200mm fully insulated cavity. * High quality black PVC downpipes, fascia and soffit. External lighting to front, side and rear doors. * Outdoor tap provided to rear of house. * Private rear gardens with separating walls, grass seeded with precast concrete post and panel fencing separating each house. * Triple glazed external windows. Windows and Doors * High quality and energy efficient triple glazed Alu clad windows and doors. * Munster Joinery doors with secure locking system. Internal Features * Walls and ceiling smooth finished plaster. * First floor timber joists. * High quality internal doors and ironmongery. * High quality timber feature stairs. Electrical & Heating * Generous electrical specification throughout. *TV data points in living room. * Wired for fibre optic broadband. * Smoke and heat detectors installed. * External power provided to the rear of the house for a shed. * Modern Air to water central heating system with stats provided on each floor for temperature control. * Pressurised hot and cold-water supply. * Underfloor heating to ground floor with radiators on first and second floor. * Ventilation heat recovery system provided throughout to ensure the homes are provided with ambient ventilation. Energy Efficiency * Minimum A2 BER for energy efficient homes with 200mm thick insulated walls and highest performance for air tightness. Guarantee *Comes with a 10-year Structural Defects Guarantee. Hawthorn Place is within easy walking distance of town centre and very central to commuting towns of Killarney and Tralee. QUALIFIES FOR HELP TO BUY SCHEME MINUTES WALK TO TOWN CENTRE SMALL EXCLUSIVE ESTATE OF JUST 9 HOMES IN TOTAL LARGE SITE TARMACADAM DRIVEWAY COMPLETED TO A BUILDERS FINISH For more info or an appointment to view call Adrian on 087 1303206.

Map

Contact Agent